-
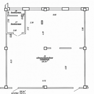
- Дата аукциона: будет объявлена позже Регион:г. МинскНачальная цена: 76 980 долл. США с НДС Площадь:128,3 кв.м.










Офис на 3 этаже бизнес-центра, на первых этажах здания - торговый центр.
ТОРГОВЫЙ ЦЕНТР «АВТОИНДУСТРИЯ» расположен в стратегически выгодном месте на пересечении улиц Радиальной и Ваупшасова.
В состав центра входят: ОФИСНЫЕ ПОМЕЩЕНИЯ (3, 4 этажи), магазины павильонного типа по торговле автозапчастями, аксессуарами, электроинструментом, (1, 2 этажи), рыбаловными принадлежностями и товарами для отдыха и туризма, строительным инструментом.
Наличие лифта, санузлов, кафе, банка, автомойки, удобных подъездных путей, парковки на 340 машиномест, отличного транспортного сообщения являются неоспоримыми преимуществами, как и удобное географическое расположение.
Отличное транспортное сообщение со станциями метро «Тракторный завод», «Партизанская», «Автозаводская», «Академия наук».
Высокоскоростной интернет, система пожарной сигнализации, система охранной сигнализации, круглосуточный контроль доступа в здание, система видеонаблюдения.
Организатор аукциона: ООО «Реалконсалтинг»
Контактная информация по осмотру объекта: с 9.00 по 18.00 по предварительной договоренности.
Контактные лица + 375 (17) 256-61-35 | +375 (025) 549-86-22
Email: auction@expertiza.by, помощник руководителя ООО «Реалконсалтинг»,
г. Минск, ул. Пономаренко, 35А, пом. 701, каб. 8
Email для предложений потенциальных покупателей: Свои предложения и вопросы вы можете направлять на email: : auction@expertiza.by
Заявления на участие в аукционе принимаются в рабочие дни с 9.00 до 18.00, по адресу: г. Минск, ул. Пономаренко, 35А, пом. 701, каб. 8
Последний день приема заявлений: 07.02.2020 до 17.00
Срок заключения договора купли-продажи - 20 дней со дня проведения торгов;
Срок оплаты предмета торгов - 30 дней со дня заключения договора;
Победитель аукциона (единственный участник) обязан перечислить на текущий (расчетный) счет Собственника сумму затрат на организацию и проведение аукциона в белорусских рублях в течение 3 рабочих дней со дня его проведения. Победителем аукциона (единственным участником) возмещаются фактические затраты, связанные с организацией и проведением торгов по соответствующему лоту. Фактические затраты по каждому лоту уточнять у организатора торгов.
Информация об участии в аукционе изложена в положении об организации и проведении аукциона №01/20
Для участия в аукционе необходимо внести задаток (участник аукциона, желающий участвовать в нем по нескольким предметам аукциона, вносит задаток в размере, установленном для предмета аукциона с наибольшей начальной ценой). Банковские реквизиты:
- для резидентов РБ задаток перечисляется в белорусских рублях Организатору аукциона на расчетный счет BY70SLAN30124358100130000000 в ЗАО Банк ВТБ (Беларусь), г. Минск, ул. Московская, 14, БИК SLANBY22;
- для нерезидентов РБ задаток перечисляется в валютном эквиваленте по курсу НБ РБ на дату платежа на следующие счета: в долларах США (USD) - расчетный счет BY28SLAN30124358150210000000 в ЗАО Банк ВТБ (Беларусь), г. Минск, ул. Московская, 14, БИК SLANBY22.
Получатель платежа: ООО «Реалконсалтинг», УНП 191302068.
Назначение платежа: «Задаток согласно Извещению о проведении аукциона №01/20 по лоту №__»
| № ЛОТА | ПРЕДМЕТ АУКЦИОНА | МЕСТОНАХОЖДЕНИЕ | НАЧАЛЬНАЯ ЦЕНА ПРОДАЖИ долл. США с учетом НДС* | СУММА ЗАДАТКА ПО ЛОТУ, РУБ. |
|---|---|---|---|---|
| 1 | Административное помещение с инвентарным номером 500/D-708127294 площадью - 128,3 кв.м. Назначение-административное помещение. Наименование-административное помещение. Офис. | г. Минск, ул. Ваупшасова, 10-160 | 76 980 | 6000 |
* расчеты за приобретаемое имущество производятся в белорусских рублях по курсу НБ РБ на дату заключения договора купли-продажи
СООО "РЕСО-БелЛизинг"






















